| Stato di disponibilità: | |
|---|---|
| Quantità: | |
Il FUE05 è un veicolo utilitario per il trasporto di esplosivi senza cingoli con una capacità di carico utile massima di 5 tonnellate. Il veicolo adotta componenti internazionali di prima qualità, un telaio centrale articolato e un sistema di servosterzo completamente idraulico. Dotato di freni multidisco a bagno d'olio completamente chiusi che utilizzano SAHR, il veicolo è alimentato da un motore turbo Cummins a basse emissioni conforme agli standard sulle emissioni China IV. La cabina certificata FOPS/ROPS integra un display multifunzionale per il monitoraggio delle apparecchiature in tempo reale e l'assistenza nella risoluzione dei problemi.
Il sistema universale del telaio ad attacco rapido consente modifiche rapide, supportando molteplici accessori funzionali per operazioni diversificate. Il meccanismo di cambio rapido consente la sostituzione dell'utensile entro cinque minuti.
| Categoria | Dettagli |
|---|---|
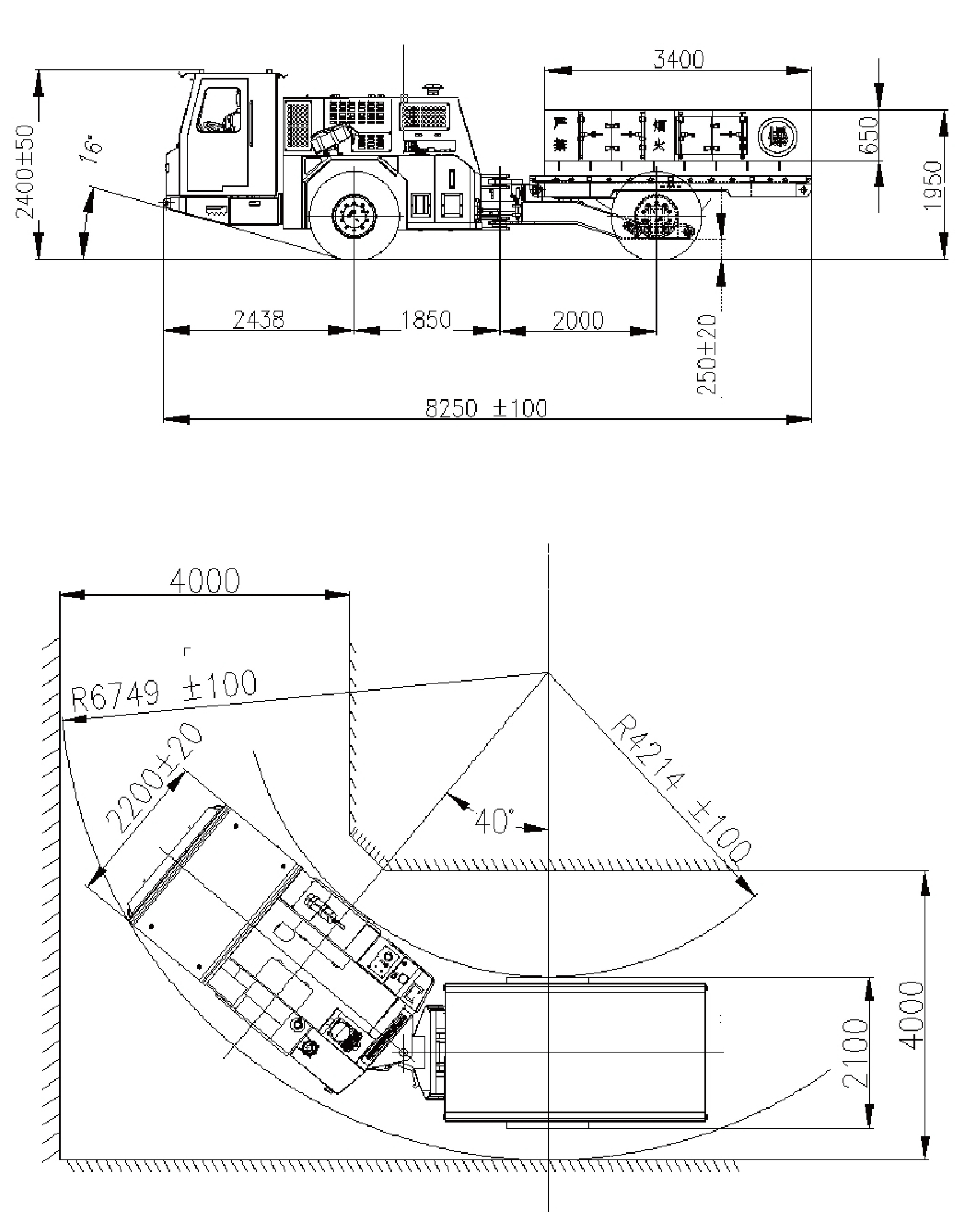
| Prestazioni | Portata utile: 5.000 kg Dimensione vano: 3.200 × 5.500 × 1.800 mm Larghezza porta cella: 1.700 mm Numero della porta dello scomparto: 5 PC Forza di trazione massima: 110 kN |
| Dimensione | Lunghezza: 8.250 ± 100 m mLarghezza: 2.200 ± 20 mm Altezza: 2.400 ± 50 mm Altezza da terra: 250 ± 20 mm Angolo di sterzata: ±40° Raggio di sterzata interno: 4.214 ± 100 mm Raggio di sterzata esterno: 6.749 ± 100 mm |
| Velocità (livello, pieno carico) | 1a marcia: 5 ± 1 km/ h2a marcia: 12 ± 1 km/h 3a marcia: 24 ± 1 km/h |
| Sistema di alimentazione | Motore: Cummins B5.9CS 4EFI, raffreddato ad acqua, Tier 4, Euro Stage IV 129 kW a 2.200 giri/min, 760 N·m a 1.600 giri/min |
| Sistema di scarico | Purificatore catalitico e silenziatore DOC |
| Capacità del serbatoio del carburante | 140 litri |
| Sistema idraulico | Sterzo completamente idraulico Valvola di carica e valvola del freno di servizio: MICO Accumulatore freno: Leemin (Filtro ritorno olio) Serbatoio olio idraulico: 200 L |
| Impianto Elettrico | Relè elettrico e interruttore automatico: Schneide rController: Finlandia EPEC Rilevamento guasti al motore |
| Cabina (chiusa) | Certificazione FOPS/ROPS Aria condizionata fredda Due porte per la cabina Guida in avanti Sistema di accesso a tre punti di contatto per entrare rapidamente in cabina Sedile con sospensione a bassa frequenza Telecamera di retromarcia del veicolo Cabina a due posti Tergicristallo esterno cabina |
| Sicurezza | Faro lampeggiante Protezione antincendio portatile 1 × 6 kg Allarme fumoSistema di ventilazione |
| Opzioni | Sistema automatico di protezione antincendio Lubrificazione centralizzata automatica |


Il FUE05 è un veicolo utilitario per il trasporto di esplosivi senza cingoli con una capacità di carico utile massima di 5 tonnellate. Il veicolo adotta componenti internazionali di prima qualità, un telaio centrale articolato e un sistema di servosterzo completamente idraulico. Dotato di freni multidisco a bagno d'olio completamente chiusi che utilizzano SAHR, il veicolo è alimentato da un motore turbo Cummins a basse emissioni conforme agli standard sulle emissioni China IV. La cabina certificata FOPS/ROPS integra un display multifunzionale per il monitoraggio delle apparecchiature in tempo reale e l'assistenza nella risoluzione dei problemi.
Il sistema universale del telaio ad attacco rapido consente modifiche rapide, supportando molteplici accessori funzionali per operazioni diversificate. Il meccanismo di cambio rapido consente la sostituzione dell'utensile entro cinque minuti.
| Categoria | Dettagli |
|---|---|
| Prestazioni | Portata utile: 5.000 kg Dimensione vano: 3.200 × 5.500 × 1.800 mm Larghezza porta cella: 1.700 mm Numero della porta dello scomparto: 5 PC Forza di trazione massima: 110 kN |
| Dimensione | Lunghezza: 8.250 ± 100 m mLarghezza: 2.200 ± 20 mm Altezza: 2.400 ± 50 mm Altezza da terra: 250 ± 20 mm Angolo di sterzata: ±40° Raggio di sterzata interno: 4.214 ± 100 mm Raggio di sterzata esterno: 6.749 ± 100 mm |
| Velocità (livello, pieno carico) | 1a marcia: 5 ± 1 km/ h2a marcia: 12 ± 1 km/h 3a marcia: 24 ± 1 km/h |
| Sistema di alimentazione | Motore: Cummins B5.9CS 4EFI, raffreddato ad acqua, Tier 4, Euro Stage IV 129 kW a 2.200 giri/min, 760 N·m a 1.600 giri/min |
| Sistema di scarico | Purificatore catalitico e silenziatore DOC |
| Capacità del serbatoio del carburante | 140 litri |
| Sistema idraulico | Sterzo completamente idraulico Valvola di carica e valvola del freno di servizio: MICO Accumulatore freno: Leemin (Filtro ritorno olio) Serbatoio olio idraulico: 200 L |
| Impianto Elettrico | Relè elettrico e interruttore automatico: Schneide rController: Finlandia EPEC Rilevamento guasti al motore |
| Cabina (chiusa) | Certificazione FOPS/ROPS Aria condizionata fredda Due porte per la cabina Guida in avanti Sistema di accesso a tre punti di contatto per entrare rapidamente in cabina Sedile con sospensione a bassa frequenza Telecamera di retromarcia del veicolo Cabina a due posti Tergicristallo esterno cabina |
| Sicurezza | Faro lampeggiante Protezione antincendio portatile 1 × 6 kg Allarme fumoSistema di ventilazione |
| Opzioni | Sistema automatico di protezione antincendio Lubrificazione centralizzata automatica |


Situata nella zona di sviluppo economico di Laixi della città di Qingdao, FAMBITION è un produttore ben noto e specializzato di attrezzature minerarie senza binari.
Diritto d'autore© 2024 QINGDAO FAMBITION HEAVY MACHINERY CO.,LTD. Tutti i diritti riservati. | Sitemap | politica sulla riservatezza